At Matt Hull Consulting, we specialize in providing high-quality CAD and Revit services tailored to meet the unique needs of each project. Leveraging our expertise in 3D laser scanning and aerial surveying, we deliver precise, efficient, and innovative solutions for architectural, engineering, and construction professionals across Northern Ireland and beyond.

Our CAD services are designed to transform raw data into accurate, detailed 2D drawings and plans. Whether you need site layouts, floor plans, elevations, or sections, we ensure every detail is captured with precision. Our CAD services include:

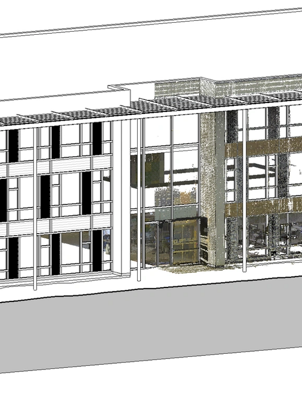
Our Revit services are designed to seamlessly integrate survey data into Building Information Modeling (BIM) workflows, providing clients with precise and reliable models that enhance project planning and execution. By utilizing data from 3D laser scanning and aerial surveys, we create highly accurate models that reflect real-world conditions. Our Revit services include:

At Matt Hull Consulting, we utilize state-of-the-art software to perform advanced data extraction and analysis, transforming raw survey data into actionable insights. Our cutting-edge technologies and methodologies ensure precision and reliability in every project. Our data extraction and analysis services include:

Partner with Matt Hull Consulting for your CAD and Revit needs, and experience the difference that precision, innovation, and expertise can make in your projects. Contact us today to learn more about how we can support your next venture.
Matt Hull Consulting
Coleraine, Causeway Coast and Glens, Northern Ireland, United Kingdom
Copyright © 2026 Matt Hull Consulting - All Rights Reserved.
Powered by Pixie 🐈⬛